铜梁区东城街道桫椤路*号(龙苑花园)
*单元增设电梯公示
铜梁区东城街道桫椤路*号(龙苑花园)*单元相关业主、相关利害关系人:
铜梁区东城街道桫椤路*号(龙苑花园)*单元共计49户业主,其中赖*等41户业主向重庆市铜梁区人民政府东城街道办事处提出增设电梯申请。现将有关事宜公示如下:
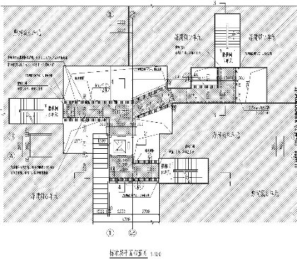
一、电梯项目名称及建设地点:铜梁区东城街道桫椤路*(龙苑花园)*单元增设电梯项目。建设地点位于铜梁区东城街道桫椤路*号(龙苑花园)*单元(方案详见增设电梯示意图),属重庆市铜梁区东城街道长坡社区。
二、公示内容:根据《重庆市既有住宅增设电梯管理办法》规定,现将书面申请、增设电梯示意图等内容向相关业主和利害关系人进行公示,公开征询意见。公示期为7日,2025年9月26日——2025年10月2日。同时在铜梁区政府网同步进行公示,公示链接:https://www.cqstl.gov.cn/。
三、异议处理。1.公示期间,因增设电梯受到影响的利害关系人有反对意见的,业主可自行协商;业主协商不成的,可在2025年10月14日前(公示期满之日起5个工作日内)向社区居委会、街道办事处提出书面反对意见、调解申请,并将书面意见、房产证(或购房合同)复印件等证明涉及其利害关系的材料邮寄或直接提交至社区居委会、街道办事处,注明身份(单位-名称、社会信用代码及法定代表人身份证明、个人姓名及身份证复印件)、联系电话和邮寄地址。逾期未提出的,视为同意申请事宜或自动放弃权利。2.对公示异议的,社区居委会、街道办事处将依据相关规定履行调解程序。
四、街道办事处将视公示异议、调解情况等牵头组织相关部门进行联合审查。
附件:1.书面申请;2.相关合格书;3.增设电梯示意图;4.业主书面同意意见。5.费用分担协议。
铜梁区东城街道办事处联系人:陈曦; 联系电话:023-45870852;邮编:402560 地址:东城街道迎宾东路368号 ;
重庆市铜梁区东城街道长坡社区居委会;联系电话:023-81608188。
增设电梯示意图:


重庆市铜梁区人民政府东城街道办事处 重庆市铜梁区东城街道长坡社区居民委员会
2025年9月26日














