铜梁区东城街迎春街**号(金盾花园)相关业主、相关利害关系人:
近日,铜梁区东城街迎春街**号(金盾花园)*单元周*炳等11位业主向重庆市铜梁区规划和自然资源局提出申请,增设电梯。铜梁区东城街道办事(金盾花园)*单元增设电梯项目的相关情况公示如下:
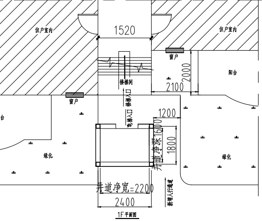
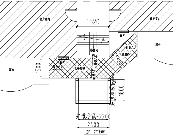
该增设电梯项目名称为铜梁区东城街迎春街**号(金盾花园)*单元增设电梯项目,建设单位为重庆富士电梯有限公司,设计单位为重庆市全城建筑设计有限公司,建设地点位于铜梁区东城街迎春街**号(金盾花园)*单元(方案详见增设电梯示意图),属重庆市铜梁区东城街道龙城社区。
重庆市铜梁区规划和自然资源局根据《重庆市老旧住宅增设电梯建设管理暂行办法》、《关于进一步推进老旧住宅增设电梯的规划指导意见》规定,现将书面申请、增设电梯示意图、经核实并盖章后的同意增设电梯的业主名单及书面同意意见等申请内容向相关业主和利害关系人进行公示,公开征询意见。公示期为7日,2023年6月7日——2023年6月13日。同时在铜梁区政府网同步进行公示,公示链接:https://www.cqstl.gov.cn/。
(一)公示期间,因增设电梯受到影响的利害关系人有反对意见的,业主可自行协商,解决增设电梯过程中的利益平衡、权益受损等事宜。业主协商不成的,可在公示期结束后5个工作日内即2023年6月20日前向社区居委会提出书面反对意见申请调解及听证申请,并将书面意见、房产证(或购房合同)等证明涉及其利害关系的材料确认签字并邮寄或直接提交至社区居委会,注明身份(单位-名称、社会信用代码及法定代表人身份证明/个人姓名及身份证复印件)、联系电话和邮寄地址。逾期未提出的,视为同意申请事宜或自动放弃权利。
(二)经社区居委会确认调解仍未达成一致意见的,持异议的业主可向属地街道办事处申请搭建协商平台,采用召开协调会等方式进行调解。
(三)社区居委会和街道办事处出具相关调解情况记录。调解成功的,社区居委会、街道办事处应对申请人递交的增设电梯项目申请资料予以盖章确认。
(四)在调解过程中,可由社区居委会和街道办事处引导申请加装电梯的业主对因增设电梯而受到影响的利害关系人给予一定的补偿。
附件:1.书面申请;2.增设电梯示意图;3.授权委托书;4.业主书面同意意见。5.增设电梯协议书;6.协议业主书面同意意见。
区规划主管部门联系人:张云胜; 联系电话:023-45693152;邮编:402560 地址:巴川街道河湾36号 ;
协调矛盾纠纷单位:重庆市铜梁区东城街道龙城社区委会;联系电话:023-45877736 。
增设电梯示意图:加装电梯须占用部分绿化。 2层使用玻璃廊桥,2层以下电梯井道墙面使用玻璃透光材料制作。



重庆市铜梁区规划和自然资源局 重庆市铜梁区东城街道龙城社区居委会
2023年6月7日














